Фасадная система Alucom KG под Фасадный керамогранит

  • Описание системы
  • Документация к системе
  • Фотографии + чертежи + узлы
  • Комплектующие
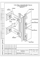
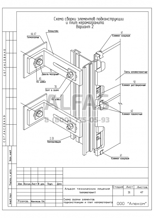
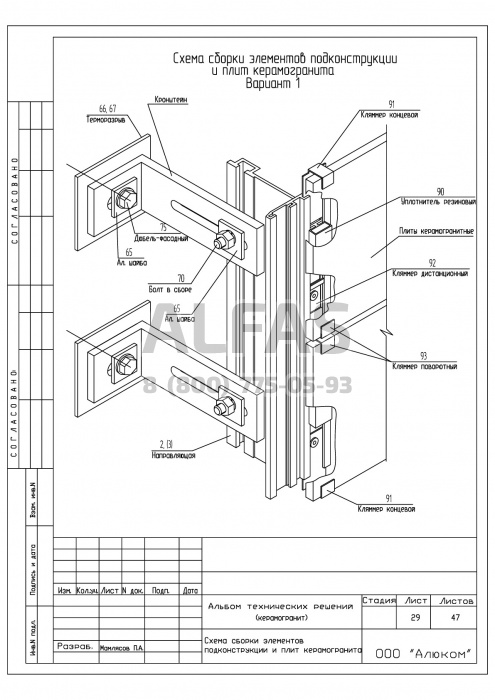
Alucom KG – алюминиевая подоблицовочная конструкция, выполненная из сплава А6063 Т6, обеспечиваемый диапазон регулировки относа от стены от 100 мм до 320мм. В качестве облицовки используются плиты из керамического гранита в диапазоне толщин 8-12мм. Крепление осуществляется открытым способом при помощи поворотного кляммера, изготовленного из нержавеющей стали 12Х18Н10Т.

Alucom KG можно использовать как в варианте с резиновыми уплотнителями, так и без них. В этом случае используется прижимной кляммер новой ОРИГИНАЛЬНОЙ КОНСТРУКЦИИ. Кляммеры могут, по желанию Заказчика, окрашиваться в цвет материала облицовки.

Особенность системы:

  • Надежность крепления всей конструкции за счет применения болтового соединения кронштейна и направляющей.
  • Быстрота сборки, обусловленная оригинальной конструкцией поворотного кляммера.
  • Концевые и поворотные кляммера устанавливаются в пазы вертикальной направляющей, что облегчает процесс монтажа и предотвращает перекос плиток.
  • Эстетическая привлекательность, характеризующаяся возможностью уменьшить швы между плитками до 4-6 мм.
  • Прижимной кляммер оригинальной конструкции позволяет не использовать в системе резиновые уплотнители.

3f2ac2e9c889a477ef8dc2177e203364
3f2ac2e9c889a477ef8dc2177e203364
c34b2020d5a3df288206cb1434406edb
c34b2020d5a3df288206cb1434406edb
48b18695f6415a1594b8f5ef8cafce41
48b18695f6415a1594b8f5ef8cafce41
dd47fc6a8a69b227a982699de5e172b5
dd47fc6a8a69b227a982699de5e172b5
8d536a7e91c3e6810e19d28f6028905c
8d536a7e91c3e6810e19d28f6028905c
a0f6e7d5924f93533936c011431f57d1
a0f6e7d5924f93533936c011431f57d1
03e0e68fa1e1cd90bb736213eaba5e25
03e0e68fa1e1cd90bb736213eaba5e25
8c43a7b320ce47905ec0e2cf374cafee
8c43a7b320ce47905ec0e2cf374cafee
cb66e8e5e0156fb64d5f3251592f14e7
cb66e8e5e0156fb64d5f3251592f14e7
Для вас предусмотрена скидка от базовых цен!
Отправить заявку

Другие фасадные системы под
Фасадный керамогранит

Заказать расчёт сметы. БЕСПЛАТНО!